本次為集團辦公室設計效果圖,辦公室設計面積6000平方,設計師在辦公室設計中,以簡約、色彩為辦公室設計關鍵詞,目的是希望打造一個實用、不單調(diào)的辦公空間。
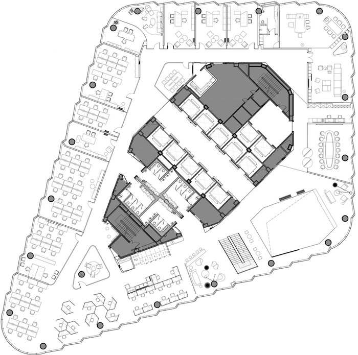
▼43層平面圖

▼44層平面圖

▼45層平面圖

▼集團辦公室前臺

▼集團辦公室接待區(qū)

▼集團辦公室洽談室

▼集團辦公室交流室

▼集團辦公室辦公區(qū)

▼集團辦公室辦公區(qū)

▼集團辦公室樓梯

▼集團辦公室辦公區(qū)

▼集團辦公室樓梯

▼集團辦公室休息區(qū)

▼集團辦公室閱讀區(qū)

▼集團辦公室交流區(qū)

▼集團辦公室休息區(qū)

▼集團辦公室交流區(qū)

本次集團辦公室設計效果圖講解到此結束,設計師在辦公室設計中,以簡約、色彩為辦公室設計關鍵詞,目的是希望打造一個實用、不單調(diào)的辦公空間。